How It Works
Find a Hangar
List Your Hangar
Get Started
Get a Demo
How It Works
Find a Hangar
List Your Hangar
Sign In
Get Started
Get a Demo
Get Started
Find Hangars
/
BZN Hangar
BZN Hangar
KBZN - Gallatin Field - Belgrade - Montana
1 / 6
+1
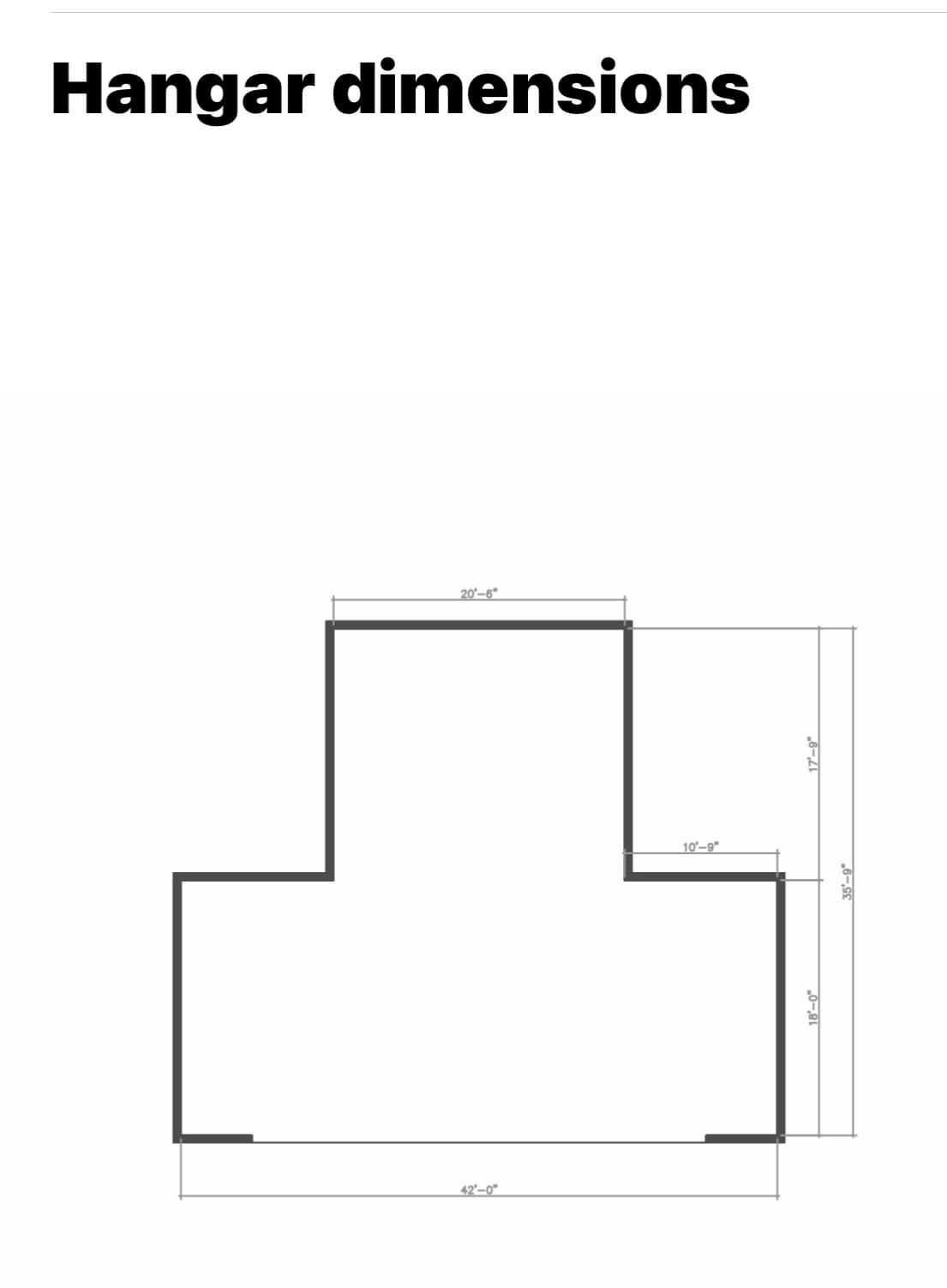
Dimensions
Width
42' 0"
Length
35' 9"
Door Height
10' 0"
Door Width
40' 0"
Description
Like new T-hangar off of taxiway hotel at BZN; 42' wide; bi-fold door; fully insulated and heated; bathroom nearby. $300,000. Contact for more photos and details.
Find Hangars
/
BZN Hangar
BZN Hangar
KBZN - Gallatin Field - Belgrade - Montana
1 / 6
+1
Buy
300,000
.00
Inquire Now
Meet your host
John Cox - KBZN
John Cox
Gallatin Field Airport, Gallatin Field Road, Belgrade, MT, USA
1
Hangar
May 2026
Member Since
Message Facility
View profile
To help protect your payment, always use Hangar Direct to send money and communicate with the facility.
Nearby Hangars